Quels matériaux choisir pour l'ossature du bardage (ITE) ?
Introduction :
Les documents réglementaires (cahier 3316 et 3194 du CSTB) décrivent la nature des matériaux à utiliser pour l’ossature d’un bardage ventilé :
L’ossature rassemble les éléments permettant de rapporter le parement sur la structure porteuse, à savoir, les profils sur lesquels sont fixés les parements de bardage ainsi que les Equerres (et leurs fixations) qui font le lien entre les profils et le mur.

Les profils horizontaux ou verticaux sont généralement de nature bois, en acier ou en Aluminium.
- Profil de nature Bois :
De type chevron Bois massif (type Epicéa ou pin sylvestre) de classe C18 ou D18 selon la norme NF EN 338, avec un taux d'humidité au plus égal à 18 %.
Compte tenu de leur emploi en ossature de bardage rapporté c'est-à-dire en atmosphère extérieure protégée et ventilée, La classe 2 est nécessaire pour un bardage à joints fermés ou 3b pour les joints fermés (à claires-voies). Pour les bords de mer, se référer au cahier 3316 du CSTB.
La bande pare-pluie ne concerne que les parements à joints ouverts sur chevron (ce qui n’est pas le cas des clins PVC) et dans le cas d’utilisation de chevrons traités en classe 2 seulement (« la face avant des chevrons devra être protégée complètement (sur toute sa hauteur) des projections et/ou ruissellement d’eau de pluie par une bande pare-pluie »).
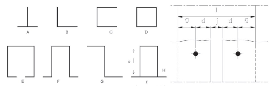
Section : ℓ x p
La section de chevron standardisée la plus utilisée et la plus susceptible de convenir est de 63x75 mm (avec section vue 63 mm).Néanmoins en ce qui concerne la largeur vue ℓ, celle-ci doit permettre une largeur d’appui suffisante compte tenu des éléments qu'elle aura à supporter, de la présence de joint du bardage, ainsi qu’une largeur suffisante en fonction de la longueur des fixations du chevron sur l’équerre :
En ce qui concerne la profondeur, celle-ci doit permettre une garde g suffisante entre l'axe des fixations de l'élément et le flanc du chevron : g = 3 x Øvis, soit 15mm pour les tirefonds de blocage Ø5 et 22.5mm pour le tirefond central Ø7,5. Plus la profondeur g du chevron est importante plus la possibilité de réglage l’est aussi, dans le cas de mur avec des défauts de planéité.
De plus, pour éviter le vrillage des bois, le rapport p/ℓ devra être compris entre 0,5 et 2, par exemple pour un chevron 6x8 : 0,5 ≤ p/ℓ=6/8=0.75 ≥ 2 (avec 8cm en vue)
Compte tenu de la largeur vue ℓ retenue, la profondeur p du chevron doit être choisie telle que la flèche prise tant en pression qu'en dépression et en tenant compte des actions locales majorées, soit inférieure au 1/200 sous vent normal (si Règles NV 65 modifiées) ou 1/167ième (si EC1 P1-4 + AN) de la portée entre fixations du chevron à la structure porteuse.
- Profilés métalliques
- Profilés en Acier :
La nuance minimale de l’acier : S220GD conformément à la norme NF EN 10 346.
L’épaisseur minimale est fixée à 1.5 mm. La longueur est limité à 6m afin de limiter les effet de la dilatation thermique en montage bridé.
La protection doit être adaptée en fonction de la sévérité de l’exposition (Z275 de manière générale ou Z450 en bord de mer), en atmosphères extérieure protégée et ventilée.
- Profilés en Aluminium ou alliages d’Aluminium
Les alliages d’aluminium sont caractérisé par une teneur en cuivre de 1% au plus.
L’épaisseur minimale est fixée à 2.5mm pour une fixation par vis. La longueur est limitée à 3 m afin de limiter les effets de la dilatation thermique en montage bridé.
Section des profilés : ℓ x p
En ce qui concerne la largeur vue ℓ, celle-ci doit permettre de prendre en compte l’ouvertrure du joint de parement j , la distance d entre l’axe des fixations et le bord du parement (précisée dans les avis techniques) et la garde g entre la fixation et le bord du profilé (≥ 2x Øvis)

Compte tenu de la largeur vue ℓ retenue, la profondeur p du chevron doit être choisie telle que la flèche prise tant en pression qu'en dépression et en tenant compte des actions locales majorées, soit inférieure au 1/200 sous vent normal (si Règles NV 65 modifiées) ou 1/167ième (si EC1 P1-4 + AN) de la portée entre fixations du profilé à la structure porteuse.
Les profilés type B (cornière en « L »), sont limités à 0.6m d’entraxe et 1m de distance entre les équerres.
Les Equerres Faynot
Elles permettent de faire le lien entre les profilés et la structure porteuse (plus ou moins plane). L’espace ainsi créé permet de disposer un isolant thermique, de faire passer et de ménager une lame d’air ventilée.
Chaque Equerre a été conçue pour assurer la reprise des charges de poids propre du bardage et les efforts dus aux effets du vent.

Ces équerres sont en Acier S220GD conformément à la norme NF EN 10 346, avec des protections contre la corrosion Z275 ou Z450 selon l’environnement. Il existe également des équerres en plastique, aluminium, inox… mais ces matériaux sont bien moins résistants ou beaucoup plus chers.
Les accessoires pour équerres :
Rallonge réglable
Permet de rattraper les défauts de planéité du mur existant

Jambe de force
Permet de reprendre d’avantage de poids (bardage lourd, ardoise…)

Sabot d’ossature horizontale
Permet de positionner les profils (bois ou métal) horizontalement afin d’accueillir un bardage vertical

Les fixations :
- Fixation des chevrons bois sur les équerres
Pour fixer les chevrons bois sur les équerres de bardage, il faut utiliser généralement 1 tirefond de Ø 7.5 en partie centrale, et 2 tirefonds de blocage de Ø 5 x 40 mm par équerre.
Tirefond central Ø7.5x60 galvanisé à chaud au trempé pour Equerre avec platine : Standard et longue.

Tirefond central Ø7.5x50 galvanisé à chaud au trempé pour Equerre courte et ultra

Tirefond de blocage Ø5x40 galvanisé à chaud au trempé.

- Fixation des profilés métalliques sur les équerres
Fixation d'ossature acier sur équerres de bardage (2 fixations par équerre) ou Fixation des sabots sur les équerres (2 fixations par sabot)
Vis TH autoperceuse (autoforeuse) P5 5.5x25mm, TK12.

Vis tout inox A2 autoperçeuse (autoforeuse) P4 Ø5.5 ou Ø6.3 mm, tête hexagonale.
Utilisation : fixation d'éléments sur support Aluminium uniquement d'épaisseur jusqu'à 4 mm.

- Fixation des équerres dans la structure porteuse à l’aide de cheville ou goujon
Le choix de la fixation dépend principalement du support dans lequel s’ancre l’équerre (mur maçonné, béton, brique, parpaing…). De plus, il faudra utiliser une fixation de Ø 8 mm dans la mesure où le diamètre des trous des équerres permettant de les fixer au mur est de 9 mm.
Cheville Goujon d'ancrage zingué 8x75 pour équerre courte - béton fissuré
Cheville Goujon d'ancrage 8x95 zingué pour équerre standard et longue - béton fissuré

Cheville Goujon d'ancrage 8x75 zingué pour équerre courte - béton non fissuré
Cheville Goujon d'ancrage 8x90 zingué pour équerre standard et longue- béton non fissuré

Cheville Goujon d'ancrage inox A4- béton non fissuré lorsqu’il n’y a pas d’isolant ou en atmosphère sévère.

Cheville plastique diamètre 8 et 10 avec Vis zinguée tête hexagonale

Cheville Métallique - supports pleins ou creux

cheville Ø14x50 avec vis TH Ø8x70
Les Accessoires :
- éléments de fixation des isolants :
ATTACHE FIXISOL A DENTS (ATTACHE/EQUERRE A GRIFFES) POUR FIXATION ISOLANT

Attache FIXISOL en acier galvanisé Z275 – Brevetée –
L'attache FIXISOL se place sur les équerres Faynot. Elle coulisse sur le bord supérieur grâce à deux rainures de guidage et une fente définie par deux pattes élastiques empêchant son recul. La partie avant de l'attache FIXISOL est en forme de râteau, (dents destinées à pénétrer dans l'isolant et assurer son maintien).
- Extrêmement facile et rapide à mettre en œuvre.
- Convient pour des isolants non rigides en laine minérale.
Attache DENTISOL A DENTS (ATTACHE A GRIFFES PLIABLE) POUR FIXATION ISOLANT

Attache DENTISOL en acier galvanisé Z275
L'attache DENTISOL se fixe à l’aide de 2 vis sur les flancs des chevrons porteurs.
Elle est écartée vers l’extérieur afin de permettre le passage du matelas isolant, puis rabattue de manière à ce que les dents pénètrent dans l’isolant pour assurer son maintien.
- Extrêmement facile et rapide à mettre en œuvre.
- Convient pour des isolants non rigides en laine minérale.
Fixation d’isolants à l’aide de chevilles étoiles moulées en matière plastique et présentant une collerette large.
Mise en œuvre de la cheville étoile
■ Réaliser un avant-trou du diamètre de la cheville.
■ Fixer au marteau.
La longueur de la cheville étoile dépend de l’épaisseur de l’isolant mis en œuvre
Cheville-étoile pour fixation d'isolant non rigide

Cheville-étoile avec collerette Ø 90 mm. Fixation au marteau après avoir fait un avant trou de Ø 8 mm avec une profondeur de 35 à 40 mm.
Cheville-étoile pour fixation d'isolant rigide

Cheville-étoile avec collerette Ø 55 mm et clou en plastique de blocage.
Fixation au marteau après avoir fait un avant trou de Ø 10 mm avec une profondeur de 40 mm minimum
- Protection des chevron bois :
Les bardages à joints ouverts nécessitent des bois d’ossature de classe d’emploi 3b. Mais la classe d’emploi 2 est autorisée seulement si la face avant des chevrons est protégée (sur toute sa hauteur) des projections, ruissellement d’eaux de pluie, à l’aide d’une bande de protection.
Cette bande est mince, imperméable et durable. La largeur de la bande doit être égale à la largeur en vue du chevron + 20mm.
Conforme au cahier 3316 du CSTB.
Bande EPDM Parepluie L=100 - 25 mètres linéaires
